TOP
トップ
CONCEPT
コンセプト
EVENT
イベント
NEWS
ニュース
PLAN
厳選プラン
MODEL HOUSE
コンセプトモデルハウス
OB TOUR
オーナー様宅見学
GALLERY & VOICE
施工事例・お客様の声
PROPERTY
最新オススメ物件情報
LOW COST
ローコスト
4 LIFESTYLE
4ライフスタイル
AREA
施工エリア
HOME
>
厳選プラン
>
3LDK
>
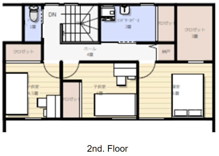
32坪4_005★★ 3LDK
3LDK
32坪4_005★★ 3LDK
プラン情報
プラン名
32坪4_005★★ 3LDK
一覧へ戻る